Program Makan Bergizi Gratis (MBG) menuntut keberadaan dapur dengan desain yang matang serta sistem kerja yang terstruktur. Dapur bukan hanya tempat memasak, tetapi merupakan pusat produksi pangan yang menentukan kualitas gizi dan keamanan makanan yang disajikan.
Oleh karena itu, desain dapur MBG yang sesuai standar Badan Gizi Nasional menjadi dasar utama dalam setiap tahap perencanaannya. Tanpa desain yang sistematis, alur kerja dapat terganggu, proses produksi melambat, dan risiko pencemaran silang meningkat.
Ukuran Desain Dapur Makan Bergizi Gratis dan Implementasinya
Berdasarkan standar MBG, ukuran dapur bervariasi sesuai kapasitas produksi dan ketersediaan lahan:
Desain Dapur Makan Bergizi Gratis Ukuran 20 × 20 meter

Memberikan ruang luas untuk alur kerja ideal serta memungkinkan penambahan fasilitas seperti ruang rapat atau istirahat staff. Namun, biaya investasi dan instalasi utilitas cukup tinggi.
Desain Dapur Makan Bergizi Gratis Ukuran 15 × 20 meter

Menjadi ukuran paling umum dan ideal. Ruang cukup untuk seluruh zona produksi tanpa mengorbankan kenyamanan kerja. Diperlukan penataan efisien agar tidak ada area terbuang.
Desain Dapur Makan Bergizi Gratis Ukuran 12 × 20 meter

Cocok untuk lokasi dengan lahan terbatas. Meski kapasitasnya lebih kecil, desain cermat tetap dapat menjaga alur kerja yang higienis dan efisien.
Ukuran 15 × 20 meter sering digunakan sebagai kompromi terbaik antara kebutuhan ruang dan efisiensi biaya.
Prinsip Higienitas dalam Desain Dapur Makanan Bergizi Gratis

Agar dapur MBG tidak hanya efisien tetapi juga memenuhi prinsip kebersihan pangan, beberapa aspek penting harus diterapkan secara konsisten:
1. Pemisahan Area Bahan Mentah dan Makanan Matang
Area untuk bahan mentah seperti sayur, daging, dan ikan harus dipisahkan secara jelas dari area pengolahan dan penyajian makanan jadi. Pemisahan ini mencegah perpindahan mikroorganisme berbahaya dari bahan mentah ke makanan siap konsumsi.
2. Jalur Kerja Searah dalam Desain Dapur Makan Bergizi Gratis
Proses kerja harus mengalir satu arah: penerimaan bahan → penyimpanan → persiapan → memasak → pemorsian → distribusi. Tidak boleh ada pergerakan balik ke area bersih. Prinsip ini memastikan bahwa makanan matang tidak terpapar kontaminan dari bahan mentah.
3. Ventilasi dan Sirkulasi Udara pada Desain Dapur Makan Bergizi Gratis
Sistem ventilasi dirancang agar asap, uap, dan bau makanan dapat keluar dengan cepat. Udara yang bersih membantu menjaga suhu dan kelembapan ideal, sekaligus mencegah pertumbuhan jamur serta bakteri.
4. Penempatan Wastafel dan Fasilitas Cuci Tangan Strategis di Desain Dapur Makan Bergizi Gratis
Wastafel harus tersedia di setiap titik penting, terutama sebelum area pengolahan. Dengan demikian, pekerja dapat mencuci tangan dengan mudah dan mencegah kontaminasi silang.
5. Pemilihan Material Tahan Lama untuk Desain Dapur Makan Bergizi Gratis
Permukaan meja kerja, dinding, dan lantai sebaiknya menggunakan bahan seperti stainless steel atau keramik yang tahan terhadap pembersihan intensif. Bahan ini mendukung proses sterilisasi dan menjaga kebersihan jangka panjang.
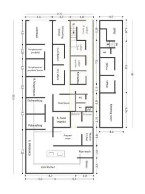
Tata Letak Dalam Desain Dapur Makan Bergizi Gratis

Dapur MBG harus disusun berdasarkan alur kerja dari hulu ke hilir. Pembagian ruang diatur agar setiap proses berlangsung secara efisien tanpa tumpang tindih fungsi. Secara umum, tata letaknya mencakup:
1. Area penerimaan bahan (receiving)
Tempat pertama untuk memeriksa kualitas bahan baku.
2. Penyimpanan kering dan dingin
Bahan kering seperti beras, minyak, dan bumbu disimpan terpisah dari bahan beku dalam chiller atau freezer.
3. Zona persiapan (preparation area)
Untuk pencucian, pemotongan, dan pra-olah bahan makanan.
4. Dapur panas (hot kitchen)
Tempat proses memasak utama menggunakan kompor, oven, dan alat masak industri.
5. Area plating atau pemorsian
Tempat penyusunan makanan dalam wadah saji sebelum distribusi.
6. Ruang distribusi
Titik pengeluaran makanan jadi untuk dibawa ke lokasi penerima.
7. Area pencucian
Ruang khusus untuk membersihkan alat dan peralatan dapur secara menyeluruh.
Standarisasi Ruang dan Peralatan pada Desain Dapur Makan Bergizi Gratis

Untuk menjaga keseragaman dan efisiensi, dapur MBG mengikuti pembagian ruang dan spesifikasi alat sebagai berikut:
1. Area Penerimaan Barang
Dilengkapi wastafel stainless, pallet plastik, timbangan, dan ruang buffer untuk menampung bahan sementara.
2. Penyimpanan Bahan Kering
Menggunakan rak dan pallet agar bahan tidak bersentuhan langsung dengan lantai.
3. Penyimpanan Dingin
Menggunakan chiller dan freezer berkapasitas besar dengan kontrol suhu otomatis.
4. Area Persiapan
Dilengkapi meja stainless, talenan dengan kode warna, serta wastafel terpisah untuk tiap jenis bahan.
5. Zona Sayur dan Buah (pre-cut)
Area khusus agar tidak tercampur dengan bahan daging atau ikan.
6. Dapur Panas (hot kitchen)
Berisi kompor, oven, bratt pan, deep fryer, sistem ventilasi, serta saluran pembuangan yang aman.
7. Plating dan Pemorsian
Harus memiliki pendingin udara agar suhu ruang stabil dan makanan tetap segar saat dikemas.
8. Area Pencucian Alat
Dibagi menjadi tahap pembuangan sisa, perendaman sabun, bilasan ganda, dan pengeringan. Mesin pencuci otomatis sangat direkomendasikan.
Standar Peralatan dan Keamanan dalam Desain Dapur Makan Bergizi Gratis

Dapur MBG beroperasi dengan sistem semi-industri, sehingga diperlukan peralatan berkapasitas besar, antara lain:
- Tilting bratt pan atau kuali besar
- Rice steamer dan rice washer
- Kompor stock-pot burner
- Deep fryer skala besar
- Chiller upright dan chest freeze
- Mesin pencuci piring otomatis
Untuk keselamatan, dapur harus dilengkapi alat pemadam api (APAR) kelas K, sistem pemadam otomatis pada hood dapur, serta detektor panas dan asap. Standar keselamatan ini wajib diterapkan mengingat risiko kebakaran dapur industri sangat tinggi.
Alur Kerja dan Kebersihan di Desain Dapur Makan Bergizi Gratis

Proses kerja dapur MBG mengikuti prinsip HACCP (Hazard Analysis Critical Control Points) yang menekankan pengendalian risiko pangan di setiap tahap produksi. Alur ideal meliputi:
1. Penerimaan bahan dan pemeriksaan kualitas
Setiap bahan yang datang diperiksa kesegarannya untuk menjamin kualitas menu yang diolah.
2. Penyimpanan sesuai jenis bahan
Bahan disimpan di area berbeda sesuai dengan karakteristiknya, sepertinya bahan kering, segar, dan beku.
3. Persiapan dan pra-olah
Bahan dicuci, dipotong, dan ditakar agar siap untuk dimasak.
4. Proses memasak utama
Kegiatan memasak dilakukan dengan peralatan industri yang efisien untuk hasil optimal.
5. Plating atau pengemasan
Makanan disajikan atau dikemas dengan rapi sesuai standar higienitas.
6. Distribusi ke lokasi penerima
Hasil olahan dikirim ke penerima dengan memperhatikan suhu dan waktu distribusi.
7. Pembersihan alat dan area kerja
Seluruh peralatan dan area dapur dibersihkan agar tetap higienis dan siap digunakan kembali.
Alur harus berjalan satu arah dan tidak ada perpotongan antara bahan mentah dan makanan matang. Zona “kotor” tidak boleh kembali ke zona “bersih”.
Penerapan Kebersihan dan Pemeliharaan dalam Desain Dapur Makan Bergizi Gratis

Kebersihan merupakan aspek paling penting dalam dapur MBG. Langkah-langkah berikut harus diterapkan:
1. Higienitas staff
Pekerja wajib mencuci tangan secara rutin, mengenakan sarung tangan, masker, dan penutup kepala.
2. Sanitasi alat
Semua alat seperti pisau, talenan, wadah, dan mesin pengolah harus disterilkan secara periodik.
3. Kontrol suhu dan lingkungan dalam Desain Dapur Makan Bergizi Gratis
Chiller dan freezer harus selalu dipantau agar suhu sesuai standar keamanan pangan.
4. Pemeliharaan peralatan
Mesin, kompor, exhaust, dan sistem ventilasi harus diperiksa berkala untuk mencegah kerusakan mendadak.
5. Pembersihan rutin
Dilakukan harian dan mingguan, termasuk saluran air, ventilasi, dan pengendalian hama.
6. Audit internal
Tim pengawas melakukan pemeriksaan rutin terhadap kebersihan dan penerapan SOP di setiap zona kerja.
Keuntungan Desain Dapur Makan Bergizi Gratis yang Tepat

Penerapan desain dapur sesuai standar memberikan banyak keuntungan, di antaranya:
1. Alur kerja lebih efisien dan cepat
Staff dapat bekerja tanpa tumpang tindih area.
2. Kebersihan terjaga
Pemisahan zona mengurangi risiko kontaminasi.
3. Pemanfaatan ruang optimal
Setiap area memiliki fungsi jelas.
4. Produktivitas meningkat
Pekerja lebih fokus dengan sistem yang teratur.
5. Kualitas makanan terjamin
Proses yang konsisten menjaga cita rasa dan nilai gizi.
6. Distribusi tepat waktu
Jalur distribusi efisien mencegah keterlambatan pengiriman.
Tantangan dan Solusi dalam Desain Dapur Makan Bergizi Gratis

Beberapa tantangan umum dalam implementasi dapur MBG antara lain:
1. Keterbatasan ruang
Desain fleksibel dan efisiensi tata letak.
2. Biaya peralatan industri tinggi
Pengadaan bertahap atau kerja sama dengan penyedia lokal.
3. Kedisiplinan staf
Pelatihan rutin dan pengawasan intensif.
4. Pemeliharaan alat sering terabaikan
Buat jadwal pemeliharaan berkala.
5. Koordinasi antar tim
Sistem komunikasi internal yang jelas.
Tips Pemeliharaan dan Keberlanjutan dalam Desain Dapur Makan Bergizi Gratis

1. Lakukan pembersihan menyeluruh setiap akhir shift.
2. Sterilkan alat secara berkala.
3. Catat suhu penyimpanan setiap hari.
4. Bersihkan exhaust, filter udara, dan ventilasi mingguan.
5. Lakukan pelatihan rutin untuk semua staff.
6. Simpan log kebersihan dan hasil audit secara tertulis.
Edukasi dan Budaya Kerja pada Desain Dapur Makan Bergizi Gratis

Desain dapur yang baik hanya akan berfungsi optimal jika didukung oleh budaya kerja higienis. Setiap staff perlu memahami:
1. Cara mencuci tangan yang benar.
2. Penggunaan talenan sesuai jenis bahan.
3. Pentingnya memakai penutup kepala.
4. Kewajiban melaporkan kerusakan alat atau suhu penyimpanan yang tidak sesuai.
Budaya disiplin ini menciptakan tanggung jawab kolektif, memastikan kualitas dan keamanan pangan tetap terjaga meski produksi dilakukan dalam jumlah besar.
Rekomendasi Peralatan Dapur dari Rumah Mesin
1. Kompor 2 Tungku

Kompor industri berukuran 1510 x 760 x 820 mm ini dilengkapi blower dengan konsumsi gas LPG sekitar 3,4 kg/jam per pembakar dan daya 120 W (220V/50Hz), dirancang untuk pembakaran efisien dan penggunaan dapur skala besar.
2. Freezer Kapasitas 500 Liter

Freezer berukuran 153 x 76,5 x 85,5 cm ini memiliki kapasitas besar dengan sistem pendingin efisien, hemat energi, dan mampu menjaga kesegaran bahan makanan dalam jangka waktu lama, ideal untuk kebutuhan dapur program makan bergizi.
3. Rak Stainless Steel

Kesimpulan
Keberhasilan Program Makan Bergizi Gratis (MBG) tidak hanya diukur dari jumlah penerima manfaat, tetapi juga dari bagaimana proses produksi makanan dilakukan secara higienis, efisien, dan berkelanjutan. Dapur merupakan jantung dari keseluruhan sistem, tempat kualitas gizi, keamanan pangan, dan ketepatan distribusi ditentukan setiap hari. Karena itu, perancangan dapur MBG tidak boleh dilakukan sembarangan, melainkan harus mengacu pada desain dapur Makan Bergizi Gratis sesuai standar Badan Gizi Nasional.
Selain faktor teknis seperti tata letak, peralatan, dan alur kerja, keberhasilan dapur MBG juga bergantung pada komitmen sumber daya manusia. Pelatihan rutin, pengawasan mutu, serta budaya disiplin dan tanggung jawab kolektif menjadi pondasi yang memastikan semua standar dijalankan secara konsisten.
Desain dapur Makan Bergizi Gratis yang sesuai standar Badan Gizi Nasional menggabungkan kecepatan, kualitas, dan higienitas dalam satu tata letak logis, mulai dari penerimaan bahan hingga distribusi makanan siap saji. Dukungan lintas sektor, mulai dari pemerintah daerah, penyedia bahan baku, hingga masyarakat penerima manfaat, juga penting agar sistem distribusi berjalan lancar dan berkelanjutan.
